
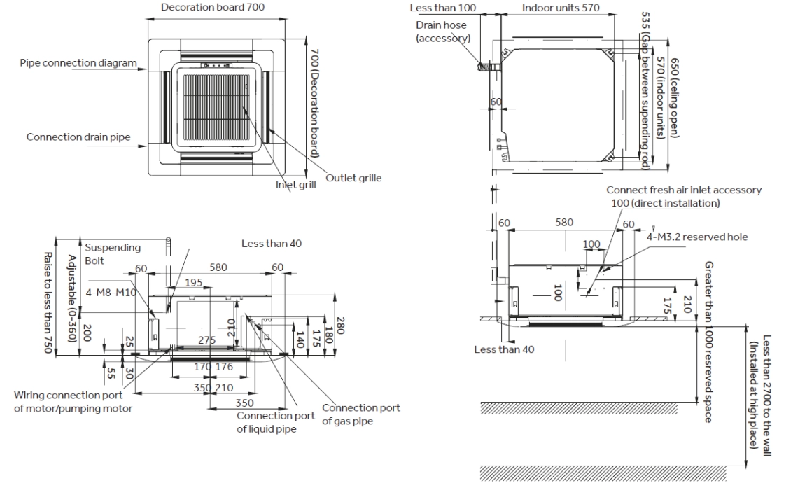
For nem adgang til dræntilslutning og kontrolpanel

Den konditionerede luft ledes ud i alle retninger fra enheden, hvilket giver ensartet køling eller opvarmning i hele rummet.

| Specifikationer | Enheder | MIBC-05X1EV1AD | MIBC-07X1EV1AD | MIBC-09X1EV1AD | MIBC-12X1EV1AD | MIBC-16X1EV1AD |
| Kapacitet | ||||||
| Køling | kW | 1,50 | 2,20 | 2,80 | 3,60 | 4,50 |
| Opvarmning | kW | 1,70 | 2,50 | 3,20 | 4,00 | 5,00 |
| Elektriske parametre | ||||||
| Strømforsyning | Ph/V/Hz | 1/220~230/50/60 | ||||
| Ventilation | ||||||
| Luftstrøm (H/M/L) | m3/h | 650/540/430 | 700/590/480 | |||
| Lydtryk (H/M/L) |
dB(A) | 32/30/29 | 32/30/29 | 32/30/29 | 33/30/29 | 33/30/29 |
| Lydeffekt (H/M/L) |
dB(A) | 46/44/43 | 46/44/43 | 46/44/43 | 47/44/43 | 47/44/43 |
| Installation - Dimensioner | ||||||
| Nettodimensioner (BxDxH) |
mm | 570x570x260 | ||||
| Pakket enhed mål (BxDxH) |
mm | 718x680x380 | ||||
| Netto/brutto vægt |
Kg | 16,0/19,0 | 16,0/19,0 | 16,0/19,0 | 19,0/22,0 | 19,0/22,0 |
| Ø Væskerør | mm (tommer) | 6,35 (1/4) | 6,35 (1/4) | 6,35 (1/4) | 6,35 (1/4) | 6,35 (1/4) |
| Ø Gasrør | mm (tommer) | 9,52 (3/8) | 9,52 (3/8) | 9,52 (3/8) | 12,70 (1/2) | 12,70 (1/2) |
| Раnel | ||||||
| Model | MB-620KB | MB-620KB | MB-620KB | MB-620KB | MB-620KB | |
| Panelets nettodimensioner (BxDxH) |
mm | 620x620x60 | 620x620x60 | 620x620x60 | 620x620x60 | 620x620x60 |
| Mål på panelemballage (BxDxH) |
mm | 660x660x115 | 660x660x115 | 660x660x115 | 660x660x115 | 660x660x115 |
| Panel Netto/brutto vægt |
Kg | 3.1/4.8 | 3.1/4.8 | 3.1/4.8 | 3.1/4.8 | 3.1/4.8 |
MIBC-05X1EV2AD MIBC-07X1EV2AD MIBC-09X1EV2AD MIBC-12X1EV2AD MIBC-16X1EV2AD MIBC-18X1EV2AD
